Oggi parliamo della propensione tipica del giovane professionista cittadino ad arredare il proprio appartamento in logica verticale. Come anticipato in un post recente, trovare la giusta soluzione abitativa in città mette in difficoltà soprattutto quella tipologia di dimorante che dalla città si sente più attratto, quindi i ragazzi che si affacciano al mondo del lavoro. Il giovane professionista vede infatti nella vita metropolitana sia un mercato del lavoro e delle professionalità più evoluto sia un’offerta sociale e culturale più frizzante. È nel momento in cui questa attrazione si scontra con il dato economico del mercato immobiliare, che il nostro socio-tipo affronta tipicamente le fasi dello stupore, della disperazione e quindi dell’ingegno.
Spesso l’ingegno si manifesta in una constatazione basilare: se le valutazioni economiche immobiliari si esprimono in metri quadri, la mia tridimensionalità può trovare agio nell’estensione verticale.
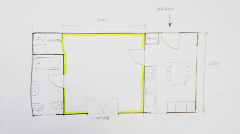
Una cliente con cui abbiamo lavorato di recente rientrava appieno in questa situazione: la ricerca di un appartamento in affitto che, pur nella categoria dei bilocali (per motivi economici), permettesse comunque di disporre di una zona giorno vivibile per accogliere gli amici. Dopo lunghe ricerche, visionando soluzioni di ogni tipo, la nostra giovane professionista si è imbattuta in un appartamento a piano strada in un cortile interno, che essendo un ex portineria aveva un notevole vantaggio: un altezza di 4 metri dal pavimento al soffitto (comunque al prezzo di un bilocale). L’ingegno si è quindi manifestato nell’acquisto di una consulenza di arredo low cost. Una rapida ricerca in internet e tramite il sito MayDayCasa.it ci è arrivata la richiesta: trovare una soluzione per sfruttare in altezza lo spazio e ricavare una camera da letto senza spendere troppi soldi.
Abbiamo lavorato da subito a un’ipotesi che potesse essere creata anche “fai da te” da un falegname, quindi di facile realizzazione, limitando per quanto possibile eventuali tagli inusuali.
La stanza da rivoluzionare si presentava come la tipica cameretta da studenti, con un mobilio di poco pregio e vistosamente demodé.
Le richieste della committenza erano abbastanza tipiche per questa tipologia di interventi:
- avere nella stessa stanza una zona notte con un letto matrimoniale e una zona giorno con divano e TV (la cucina si presenta già separata, piccola ma sufficiente per essere abitabile a pranzo e cena);
- riutilizzare una serie di mobili già presenti (un divano letto, una cassettiera e due librerie).
Con il nostro progetto la stanza è stata suddivisa verticalmente: un soppalco è stato realizzato fissando le travi ai due muri portanti perimetrali, quindi altre travi sono state posizionate a rinforzo orizzontalmente, in modo che il soppalco fosse calpestabile. La zona superiore è stata arredata con un letto futon, una cassettiera e due comodini; un dente murario sulla sinistra ha permesso di posizionare un armadio.
La stanza living è invece stata arredata con divano, tavolino e librerie (già in possesso della cliente). Sono stati acquistati in aggiunta solo dei semplici armadi: in questo caso quel noto colosso svedese dell’arredamento di cui non diremo il nome si è rivelato un perfetto compromesso tra stile e prezzo.
In questo modo la nostra giovane professionista ha una casa funzionalmente completa: non ha l’aspetto di un appartamento da studenti e presenta una zona living in cui poter accogliere gli ospiti.

























