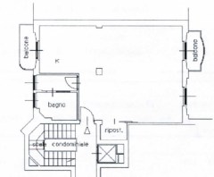
Dopo un primo colloquio con i committenti abbiamo appurato che desideravano un intervento che migliorasse lo spazio a livello funzionale ma con un budget limitato in quanto l’intenzione era di affittarlo. Abbiamo voluto mantenere un unico volume raccogliendo solo la stanza da letto, ottenendo così, uno spazio ottimale anche per una coppia o amici che condividono la casa.
Grande spazio quindi alla convivialità enfatizzando la fascia della casa che sarebbe rimasta più buia e inutilizzata. Si è cercato di dare spazio al’ingresso togliendo l’effetto corridoio e ricreando, grazie all’utilizzo del colore una stanza “senza muri” da dedicare alla zona pranzo e ad un ingresso che si trasforma in studio all’occorrenza. La cucina rimane a vista e il bancone snack ha la funzione di dividere e allo stesso tempo è elemento di continuità tra cucina e living.
Taglia di progetto M scopri come funziona sul nostro sito www.maydaycasa.it/m.html e se cerchi anche tu nuove idee per la tua casa scrivici info@maydaycasa.it
























